Objekt 2 von 12
Nächstes Objekt
Vorheriges Objekt
Zurück
code
Zurück
Nächstes Objekt
Vorheriges Objekt
ZurückAicha vorm Wald: Lichtdurchflutete und moderne Doppelhaushälfte in Aicha vorm Wald
Objekt-Nr.: P108_DHH4
Zusätzliches Infomaterial
Zusätzliches Infomaterial
Optionen
Optionen
Basisinformationen
Adresse:
Kaiserfeld 19a
94529 Aicha vorm Wald
Passau
Bayern
94529 Aicha vorm Wald
Passau
Bayern
Stadtteil:
Bayern
Preis:
489.900 €
Wohnfläche ca.:
131,26 m²
Grundstück ca.:
412 m²
Zimmeranzahl:
4,5
Weitere Informationen
Weitere Informationen
Haustyp:
Doppelhaushälfte
Etagenanzahl:
2
Provisionspflichtig:
nein
Nutzfläche ca.:
145 m²
Bad:
Dusche, Wanne, Fenster
Anzahl Schlafzimmer:
3
Anzahl Badezimmer:
1
Balkon:
1
Gäste-WC:
ja
Garten:
ja
Anzahl der Parkflächen:
1
Anzahl der Parkflächen:
1 x Garage, pro Stück 20.000 €
Qualität der Ausstattung:
gehoben
Baujahr:
2025
Verfügbar ab:
nach Vereinbarung
Bodenbelag:
Fliesen, Parkett
Zustand:
Erstbezug
Befeuerungsart:
Wärmepumpe
Energieausweistyp:
Bedarfsausweis - gültig vom 03.04.2023 bis 02.04.2033
Energieeffizienz-Klasse:
A_PLUS
Endenergiebedarf:
22,66 kWh/(m²*a)
Beschreibung
Beschreibung
Objektbeschreibung:
Mit dieser neu erbauten Doppelhaushälfte erwartet Sie auf ca. 130 qm ein Wohlfühlhaus. Energieeffizientes Bauen mit ökologischen Baustoffen und gleichzeitig eine intelligente Konzeption mit durchdachten Grundrissen sind für uns die wichtigsten Grundsteine für ein nachhaltiges Projekt. Diese Philosophie wurde auch in diesem schönen Haus berücksichtigt und umgesetzt.
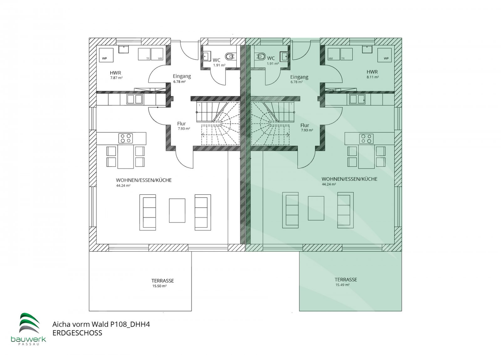
Bereits beim Betreten wird dies auch spürbar. Im Eingangsbereich finden Sie ausreichend Platz für eine Garderobe vor und für Besucher wurde diskret angrenzend ein WC eingeplant. Sollte der Platz in der Garderobe dennoch einmal eng werden, finden Sie ebenfalls angrenzend den Hauswirtschaftsraum, der zusätzlichen Stauraum bieten würde.
Der große und offen gestaltete Wohnbereich im Erdgeschoss ist das Highlight des Hauses. Lichtdurchflutet wird der Raum durch drei große Bodentiefe Fenster, die Sie auf die Terrasse und in den Garten führen. Dieser wunderschöne Raum bildet den zentralen Mittelpunkt des Hauses. Hier erleben Sie das Gefühl von Freiraum und Weite. Gleichzeitig strahlen die verwendeten Materialien Wärme und Behaglichkeit aus. Durch die offene Raumgestaltung können Sie sich auf gemeinsames Kochen, Essen, Reden und Lachen freuen.
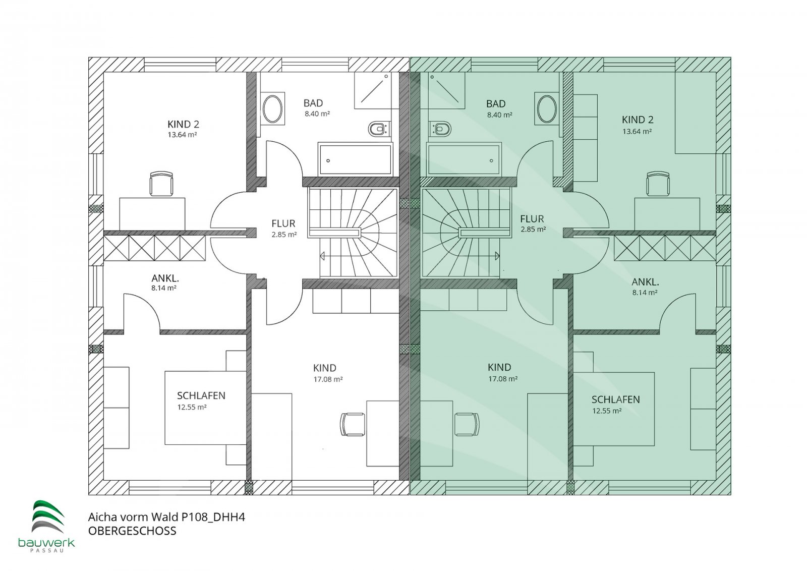
Über eine schöne Massivholztreppe gelangen Sie in das Obergeschoss. Drei großzügige Räume bieten viel Gestaltungsspielraum und bilden einen Rückzugsort für die ganze Familie. Eines der Zimmer wurde mit einem separaten Raum geplant, welcher sich sehr gut als ruhiges Büro oder Ankleideraum eignet. Natürlich können Sie diese Raumaufteilung auch anderweitig zu Ihren Vorteilen Nutzen.
Das moderne Bad mit Tageslicht ist ausgestattet mit Badewanne und Dusche und lädt zum Entspannen ein.
Bereits beim Betreten wird dies auch spürbar. Im Eingangsbereich finden Sie ausreichend Platz für eine Garderobe vor und für Besucher wurde diskret angrenzend ein WC eingeplant. Sollte der Platz in der Garderobe dennoch einmal eng werden, finden Sie ebenfalls angrenzend den Hauswirtschaftsraum, der zusätzlichen Stauraum bieten würde.
Der große und offen gestaltete Wohnbereich im Erdgeschoss ist das Highlight des Hauses. Lichtdurchflutet wird der Raum durch drei große Bodentiefe Fenster, die Sie auf die Terrasse und in den Garten führen. Dieser wunderschöne Raum bildet den zentralen Mittelpunkt des Hauses. Hier erleben Sie das Gefühl von Freiraum und Weite. Gleichzeitig strahlen die verwendeten Materialien Wärme und Behaglichkeit aus. Durch die offene Raumgestaltung können Sie sich auf gemeinsames Kochen, Essen, Reden und Lachen freuen.
Über eine schöne Massivholztreppe gelangen Sie in das Obergeschoss. Drei großzügige Räume bieten viel Gestaltungsspielraum und bilden einen Rückzugsort für die ganze Familie. Eines der Zimmer wurde mit einem separaten Raum geplant, welcher sich sehr gut als ruhiges Büro oder Ankleideraum eignet. Natürlich können Sie diese Raumaufteilung auch anderweitig zu Ihren Vorteilen Nutzen.
Das moderne Bad mit Tageslicht ist ausgestattet mit Badewanne und Dusche und lädt zum Entspannen ein.
Ausstattung:
Das können Sie von uns erwarten:
- anspruchsvolle Architektur zu einem fairen Preis-Leistungs-Verhältnis
- intelligente Energiekonzepte und ökologische Baustoffe
- Effizienzhaus 55 in Ziegelmassivbauweise
- Raumhöhen bis ca. 4,0 Meter
- lichtdurchflutete Räume mit großen Fensterflächen
- qualitativ hochwertige Ausstattung (Fußbodenheizung, Parkett u. v. m.)
- Effiziente Luft-Wasser-Wärmepumpe
- Belüftungssystem mit Wärmerückgewinnung (dezentral)
Der Preis versteht sich als schlüsselfertiger Festpreis für das Gebäude inkl. Grundstück. Darin enthalten sind auch alle Planungs- bzw. Baunebenkosten (Architekt, Statik, baubegleitende Qualitätsüberwachung, Genehmigungsgebühren, etc.).
Für die Garage kommen 20.000€ zum Kaufpreis hinzu.
- anspruchsvolle Architektur zu einem fairen Preis-Leistungs-Verhältnis
- intelligente Energiekonzepte und ökologische Baustoffe
- Effizienzhaus 55 in Ziegelmassivbauweise
- Raumhöhen bis ca. 4,0 Meter
- lichtdurchflutete Räume mit großen Fensterflächen
- qualitativ hochwertige Ausstattung (Fußbodenheizung, Parkett u. v. m.)
- Effiziente Luft-Wasser-Wärmepumpe
- Belüftungssystem mit Wärmerückgewinnung (dezentral)
Der Preis versteht sich als schlüsselfertiger Festpreis für das Gebäude inkl. Grundstück. Darin enthalten sind auch alle Planungs- bzw. Baunebenkosten (Architekt, Statik, baubegleitende Qualitätsüberwachung, Genehmigungsgebühren, etc.).
Für die Garage kommen 20.000€ zum Kaufpreis hinzu.
Lage:
Die Gemeinde Aicha v. Wald liegt im Vorwaldgebiet des Bayerischen Waldes mit Anschluss an die A3 zwischen der Dreiflüsse-Stadt Passau (20 km) und Deggendorf (35 km). Außerdem liegt es 15 km von dem ebenfalls sehr schönen Vilshofen entfernt.
Somit ist Aicha vorm Wald hervorragend angeschlossen und bietet einen sehr guten Ausgangspunkt.
Sie finden hier eine gute Infrastruktur mit allen Einrichtungen des täglichen Bedarfs. Auch ein Kindergarten und eine Schule sind in der Gemeinde vorhanden. Hier genießen Sie die Lage in einer ruhigen Neubau-Siedlung und profitieren dennoch von der guten Anbindung.
Außerdem befindet sich wenige Kilometer nördlich in Richtung Eging am See die Westernstadt Pullmann City.
Hier merkt man: Aicha vorm Wald wächst immer mehr und erfreut sich gerade bei jungen Familien über großen Anklang.
Somit ist Aicha vorm Wald hervorragend angeschlossen und bietet einen sehr guten Ausgangspunkt.
Sie finden hier eine gute Infrastruktur mit allen Einrichtungen des täglichen Bedarfs. Auch ein Kindergarten und eine Schule sind in der Gemeinde vorhanden. Hier genießen Sie die Lage in einer ruhigen Neubau-Siedlung und profitieren dennoch von der guten Anbindung.
Außerdem befindet sich wenige Kilometer nördlich in Richtung Eging am See die Westernstadt Pullmann City.
Hier merkt man: Aicha vorm Wald wächst immer mehr und erfreut sich gerade bei jungen Familien über großen Anklang.
Sonstiges:
Die Innenfotos sind von einem ähnlichen Doppelhaus in diesem Baugebiet!
Anmerkung:
Die von uns gemachten Informationen beruhen auf Angaben des Verkäufers bzw. der Verkäuferin. Für die Richtigkeit und Vollständigkeit der Angaben kann keine Gewähr bzw. Haftung übernommen werden. Ein Zwischenverkauf und Irrtümer sind vorbehalten.
AGB:
Wir weisen auf unsere Allgemeinen Geschäftsbedingungen hin. Durch weitere Inanspruchnahme unserer Leistungen erklären Sie die Kenntnis und Ihr Einverständnis.
Nutzen sie unseren kostenlosen Finanzierungsservice. Wir arbeiten mit zahlreichen örtlichen und überregionalen Banken zusammen.
Ihr Ansprechpartner
Zurück














